Q11F-16T pirinç tel düğmeli küresel vana, vana gövdesi tarafından tahrik edilir ve vananın dönme hareketi için vana gövdesinin ekseni etrafında. Esas olarak boru hattındaki ortamı kesmek veya bağlamak için kullanılır, ayrıca sıvı düzenlemesi ve kontrolü için de kullanılabilir. Boru hattındaki bu tip vanalar genellikle yatay olarak monte edilmelidir.
Ürün Özellikleri
Bu vana kompakt bir yapıya, güvenilir sızdırmazlığa, basit yapıya, kolay bakıma sahiptir, sızdırmazlık yüzeyi ve bilye yüzeyi genellikle kapalı durumdadır, ortam tarafından aşındırılması kolay değildir, kullanımı ve bakımı kolaydır.
Ürün Parametresi
Ürün Modeli | Q31F-16T |
Valf gövde malzemesi | Pirinç |
Nominal basınç | ≤1,6Mpa |
Uygulanabilir ortam | Su, gaz, petrol, vb. |
Uygulanabilir sıcaklık | ≤120°C |
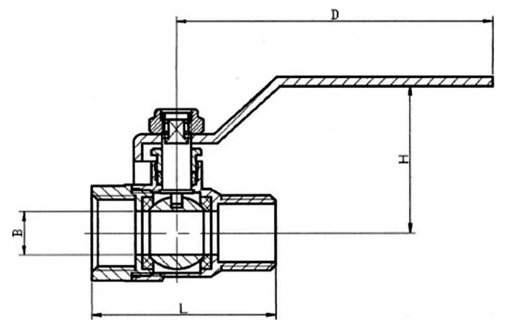
Ürün Boyut Referansı

bir cadde | BOYUT | L | B | H | D |
DN15 | 1/2 | 52 | 12 | 37 | 84 |
DN20 | 3/4 | 60.5 | 17 | 45 | 96 |
DN25 | 1 | 72 | 21 | 50 | 108 |



















