LHS743X低阻力倒流防止器主要用于城市供水等供水单位向一般污染单位供水时严格限定管道中的压力水只能单向流动的水力控制组合装置。它的功能是在任何工况下绝对防止管道中的介质倒流或虹吸倒流,以达到避免倒流污染的目的。该产品具有噪音小、流阻低、运行平稳灵敏、安装维护方便、使用寿命长等显著特点。广泛使用在各类建筑、消防、工矿、医院、园林、水处理等系统中的给水管网需要防止倒流污染的场合。
产品特点
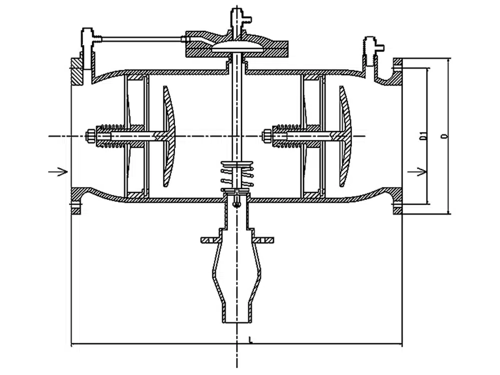
- 由前后两个止回阀和中间自动排水器组成。
- 在前后止回阀产生渗漏时,能够自动排水,阻断回流,严格防止回流污染,保护上游管道内的水质。
- 超低水损、节能显著:水头损失小于0.04Mpa。
- 空气隔断、自动排水:在回流状态发生时,主阀关闭时,排水器自动开启、中间腔泄压为零,主阀的上下游之间实现空气隔断或零压隔断,隔断性能安全可靠。
- 节地节材、安装灵活:外形小、自重轻,结构长度仅为现有同类产品的30%;可以水平或垂直安装。
产品参数
产品型号 | LHS743X-16C |
阀体材质 | 碳钢 |
公称压力 | ≤1.6Mpa |
适用介质 | 水等 |
适用温度 | ≤80℃ |
产品尺寸参考

通径 | L | D | D1 | n-∅d |
DN40 | 360 | 150 | 110 | 4-19 |
DN50 | 360 | 165 | 125 | 4-19 |
DN65 | 400 | 185 | 145 | 4-19 |
DN80 | 415 | 200 | 160 | 8-19 |
DN100 | 500 | 220 | 180 | 8-19 |
DN125 | 550 | 250 | 210 | 8-19 |
DN150 | 600 | 285 | 240 | 8-23 |
DN200 | 800 | 340 | 295 | 12-23 |
DN250 | 900 | 405 | 355 | 12-27 |
DN300 | 1000 | 460 | 410 | 12-27 |

















