QB2双口快速排气阀主要由阀体、阀门、上盖、阀杆、浮球、排气嘴等组成。适用于温度不超过80℃的水、热水管道上使管道内的空气全部排出。当需要排出管道内的气体时,应逆时针方向旋转阀杆,使其阀杆连同阀门上升,使管道内的空气在水的压强作用下进入体腔内,并从排气嘴排出,随之管道内的水充满体腔内,使浮球在水的浮力作用下,向上移动将排气嘴堵塞,达到自行密封,管道在正常行中,水中的空气在压强的作用下,不断排入排气阀的体腔上部,迫使浮球下降,离开原来密封位置,这时空气又从排气嘴排出,随之,浮球又恢复到原来位置自密封,因此,排气阀在正常工作中阀门始终是开着的,浮球不断重复上述动作,空气不断排出,当需要检修或清扫体腔时,应将阀门关闭。本排气阀,顺时针旋转阀杆时为关闭。
Çalışma Prensibi
当管内开始注水时,塞头停留在开启位置,进行大量排气,当空气排完时,阀内积水,浮球被浮起,传动塞头至关闭位置,停止大量排气,当管内水正常输送时,如有小量空气聚集在阀内到相当程度,阀内水位下降,浮球随之下降,此时空气由小孔排出,当抽水机停止,管内水流空时或遇管内产生负压时,此时塞头迅速开启,吸入空气,确保管线完全。
Ürün Özellikleri
- Boru tesisatından gaz çıkarabilme, direnci azaltma ve enerji tasarrufu sağlama özelliği.
- Boru hattı negatif basınç altında olduğunda, bu ürün boru hattının kopmasını önlemek için hızlı ve otomatik olarak hava emebilir.
- Havalandırma kapasitesi, sıradan bir iki delikli egzoz valfinin birçok katıdır.
- Şamandıra braketi uzun ömür, güvenlik ve güvenilirlik için paslanmaz çeliktir.
Ürün Parametresi
Ürün Modeli | QB2-16Q |
Valf gövde malzemesi | sfero döküm |
Nominal basınç | ≤1,6Mpa |
Uygulanabilir ortam | Qingshui (yer adı) |
Uygulanabilir sıcaklık | ≤80°C |
每小时排气量
norm | m³/h |
DN50 | 4-173 |
DN80 | 85-352 |
DN100 | 14-597 |
DN150 | 22-904 |
DN200 | 27-1145 |
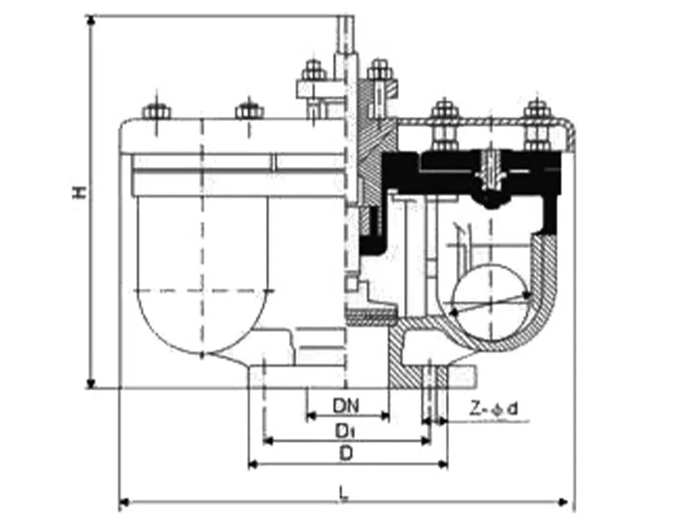
Ürün Boyut Referansı

bir cadde | D | D1 | L | H | Z-Φd |
DN50 | 160 | 125 | 345 | 315 | 4-Φ18 |
DN80 | 195 | 160 | 345 | 315 | 8-Φ18 |
DN100 | 215 | 180 | 345 | 315 | 8-Φ18 |
DN150 | 280 | 240 | 475 | 380 | 8-Φ23 |
DN200 | 335 | 295 | 475 | 420 | 12-Φ23 |















